一、項目情況:
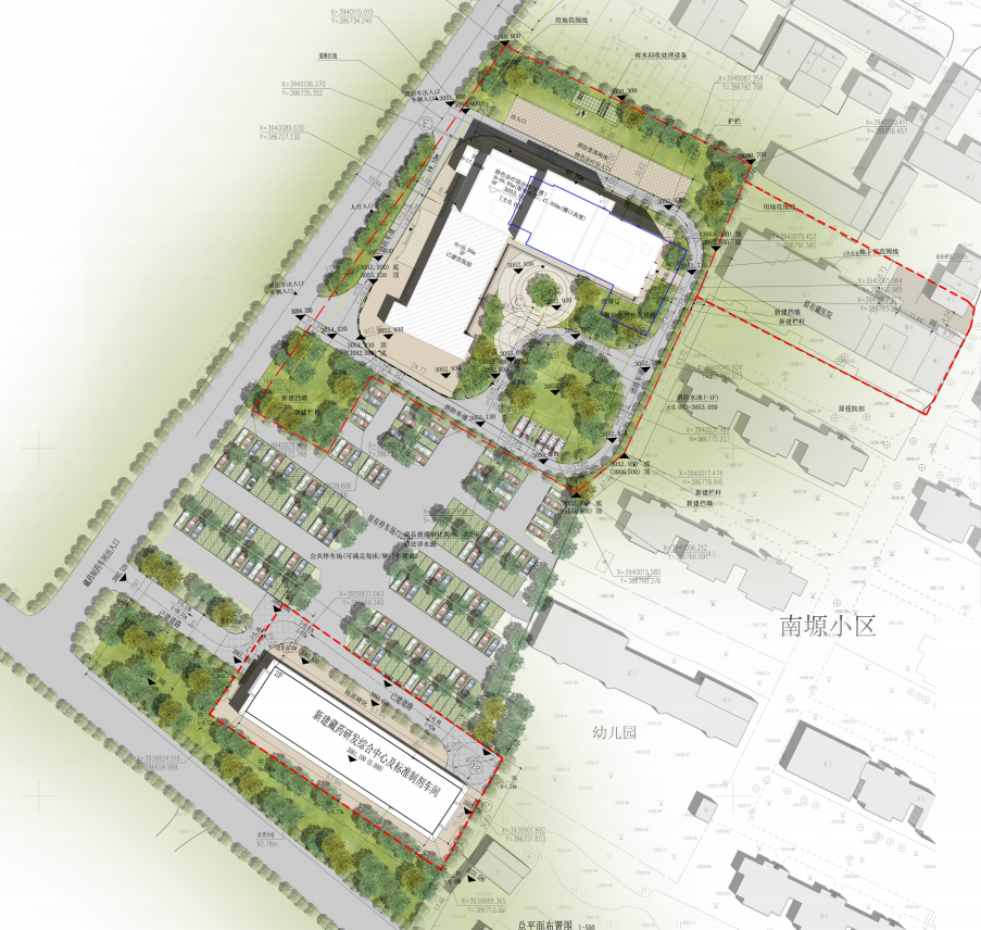
貴南縣藏醫院特色診療綜合樓是一所集醫療、預防、教學、科研及藥物研發為一體的二級甲等綜合性民族醫療機構,新建特色診療綜合樓總建筑面積10719㎡,制氧機房111㎡,鍋爐房170㎡,并配套室外給排水、供電、采暖等基礎設施。項目總投資5000萬元。項目建設成功后將極大地提高貴南縣藏醫藥的服務水平,完善區域醫療網絡體系,健全醫療服務能力,促進地方經濟全面快速發展,能更好的滿足群眾多元化健康需求,為群眾高品質生活提供醫療服務支撐。

二、總部賦能專業
方案設計、初步設計、施工圖設計,專項設計包含綠建節能,海綿城市、醫院智能化設計以及后期現場服務。
三、技術賦能過程
1、該城市合伙人雖深耕市政工程領域多年,但面對藏醫院此類融合民族文化與專業醫療功能的復雜房建項目,存在明顯經驗短板:既缺乏專項技術儲備,也無專業團隊支撐。所以在項目在中標后,迅速向總部發起技術賦能申請??偛吭谑盏劫x能申請之后,總部基于同類項目經驗,迅速組織跨專業團隊展開項目研判,項目成功需攻克三大核心難點。首先青海省對民族文化在建筑中的體現有嚴苛規范,需深度解讀地方政策文件及民族建筑圖集;其次就是藏醫院設計須尊重藏醫診療邏輯與藏族文化信仰,將藏族文化信仰與建筑空間深度耦合,設計中需避免符號化堆砌或文化表達失準,需將特有文化內核融入功能空間;最后就是藏醫特有的“望聞問切”、藥浴、藏藥炮制等工藝需獨立空間,且空間布局需嚴格滿足特殊工藝流程,與西醫、中醫診室存在顯著差異。
2、項目研判通過之后,總部迅速組建專項技術團隊,并配備藏醫文化顧問與民族建筑專家,補足文化與地域知識短板。同步總部安排方案負責人前往青海省第五人民醫院,互助縣中醫院進行項目考察,深入理解藏醫行為模式與空間需求。在項目在方案設計之初,貫徹“自然適配、文化尊重、功能落地、政策合規”設計原則,確保方案實現四重融合。設計出既符合藏醫診療需求,又融入青海地域文化的藏醫院。
3、該項目功能復雜,社會影響較大,需綜合考慮智能化設備、藏醫特殊診療需求、成本與工程技術結合等問題。接到賦能申請后,總部組織專業設計團隊在工程成本控制方面給予整體把控的前期支持,項目在過程中業主多次要求調整方案及設計內容。通過系統化賦能與精細化設計,該項目在2023年就取得了施工圖外審合格證,后因業主原因進行調整,2023年9月重新進行了方案設計,最終按照業主要求完成了設計階段工作,2024年再次取得了施工圖外審合格證。目前建筑主體結構已封頂,后續將進入裝飾裝修與設備安裝等階段。

四、生態共贏效益分析:
1、本項目合同金額約為99.5萬元,總部技術賦能按34%收取技術服務費用,約34萬。作為當地的重點項目。該項目業主對設計質量要求較高,涉及專項設計較多,項目成本控制嚴格。由總部技術賦能之后,城市合伙人的固定團隊成本轉化為彈性技術服務采購,直接省下了技術人員固定工資、社保成本,這部分費用加上設計階段二次調整的費用約占合同金額的38%。不僅如此,總部還通過多重政策疊加進一步讓利:一方面全額承擔項目技術審核費用(占合同金額1%);另一方面疊加賦能服務部分稅費減半的優惠。多重利好之下,僅通過上述成本減免與政策優惠,便直接為城市合伙人節省約8萬元經濟成本,顯著提升了項目的利潤空間。
2、該城市合伙人長期深耕市政項目領域,在深入了解總部的技術與資源賦能政策后,積極依托總部平臺優勢拓展業務邊界。借助總部成熟的技術支撐,顯著提升了對項目質量把控的信心,更成功推動項目落地。此次項目的順利交付,不僅贏得了當地政府的高度認可,為后續合作奠定了堅實基礎;更幫助其進一步擴大業務規模,從傳統市政領域向多元化項目類型延伸;同時,也有效鞏固了其在當地市場的核心競爭地位,最終借力總部賦能實現了“政府認可、規模擴張、地位鞏固” 的三重突破。








